Mosonmagyaróvár autószalon-szerviz-mosó
Cím: 9200 Mosonmagyaróvár, Gabonarakpart u. 8.
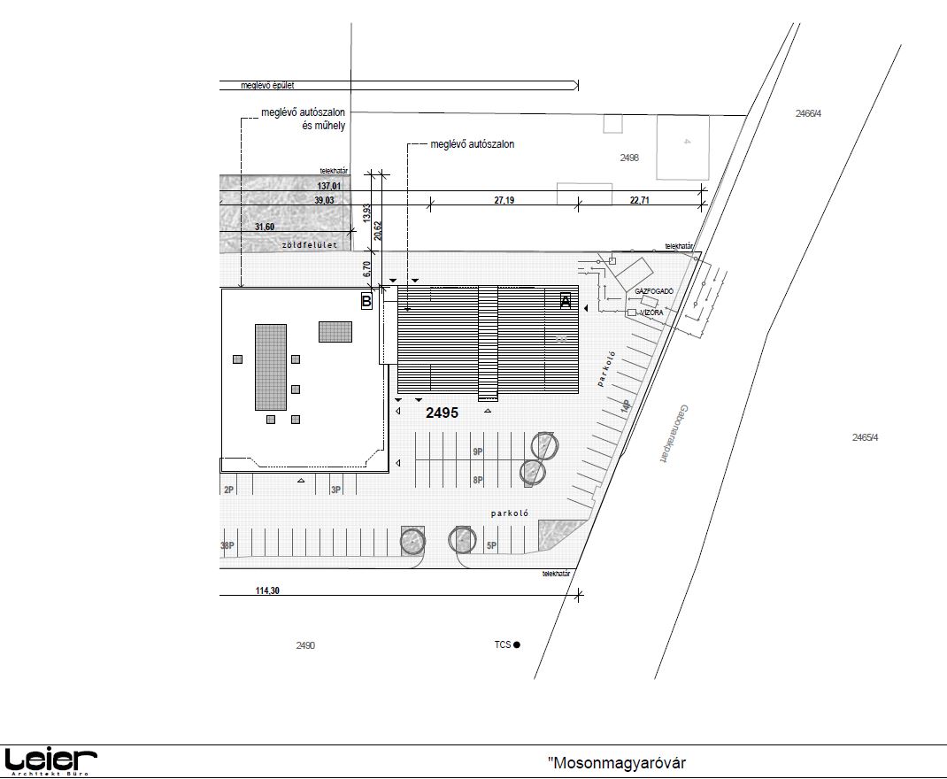
Az ingatlan Mosonmagyaróvár dél-keleti (Győr felőli) részén, a forgalmas 1-es számú főút mellett, a Gabonarakpart úton található. Az ipari-gazdasági területen fekvő telek mérete 4838 m2, a modern, jól karbantartott épület alapterülete kb. 1500 m2. A korábbi autószalon – szerviz – mosó épülete két részből áll: a nagy belmagasságú, galériás, üvegfelületekkel teli rész kb. 560 m2-es, a külön bejárattal rendelkező egyszintes rész kb. 940 m2-es. Az épület mellett kb. 60 db aszfaltozott parkoló áll rendelkezésre. A terület közvetlenül a főúton, a Shell benzinkút, és egyéb üzletek mellett fekszik. Az ingatlan nagyon jó láthatósággal rendelkezik, így kiváló reklámértékkel bír.
Jelenleg kiadó a 940 m2-es oldalsó épületrész, melyben nagyobb egyterű helyiségek, raktár és szociális blokk kapott helyet. Az ingatlan több szekcionált kapun és személybejárón is megközelíthető. A terület cellásítása és az üvegfelületek elfedése igény szerint megvalósítható. Hasznosíthatóság: ideális üzlet, bemutatóterem, autó szerviz és mosó számára. A modern részbe a Bárdi Autó költözött.
A bérlemény a fotókon látható berendezésekkel, eszközökkel együtt bérbeadó:
tűzoltókészülékek
Raktár:
Volcano VTS Euroheat fan coil
Eladótér:
2db Pyrox befúvó (ajtó felett)
4db Midea fan coil (plafon)
1db fekete Vortice állóventillátor
2db mikro (Galanz és Zanussi)
1db hűtő (Hausmeister)
+ bútorok
Műhely:
1db Ravaglioli RAV640.5.55 ollós süllyesztett 4,2/4t (műszaki vizsgához)
1db HZB-30 3t padlóba süllyesztett emelő
1db akna fék és lengéscsillapító mérővel + gázelemző és füstölésmérő (AVL)
elszívó CSM Motori
2db szekcionált műhelykapu Hörmann A445
2db motor/váltóemelő bak
satupad + állványos fúró
3db RAV emelő (kézi) 1t, 1,5t, 4t
1db HZB-30 3t padlóba süllyesztett emelő
1db HZB-25RH 2,5t padlóba süllyesztett csápos
1db RAV G820 kerékszerelő
1db olajleeresztő
4db Volcano VTS Euroheat fan coil
Konyha+WC:
1db Hajdu villanybojler 200l
10db öltözőszekrény
3db négyzet alakú asztal + 8db szék + konyhabútor
Kazánház:
1db Hörmann A445
1db AtlasCopco GA5 kompresszor + 500l tartály
1db Bosch kazán (Condens 5000W)
Mosó:
1db HDB 32SX egyoszlopos csápos emelő
1db Hörmann A445 szekcionált műhely kapu
1db Volcano VTS Euroheat

Ingatlan értékesítő
A bérleti feltételekkel és a jelenleg szabad területtel kapcsolatban, kérjük, érdeklődjön kollégánknál:
Tóthné Németh Ilona
Leier Autó - BMW Márkakereskedés és szerviz
Mobil: +36 30 526 0534
Telefon: +36 96/513-213
Email: tothne.nemeth.ilona@leier.hu